Používame cookies

Súbory cookie a ďalšie technológie sledovania používame na zlepšenie vášho zážitku z prehliadania našich webových stránok, na to, aby sme vám zobrazovali prispôsobený obsah a cielené reklamy, na analýzu návštevnosti našich webových stránok a na pochopenie toho, odkiaľ naši návštevníci prichádzajú. Viac info

GARANT REAL - predaj kaviareň a vinotéka, 80 m2, Košice, Staré mesto, Kasárenské námestie

Interné ID: 14586
Ulica: Kasárenské námestie
Obec: Košice-Staré Mesto
Okres: Košice I
Kraj: Košický kraj
Druh: Priestory
Typ: Predaj
Typ objektu: Obchodné priestory
285 000 €

Popis nehnuteľnosti

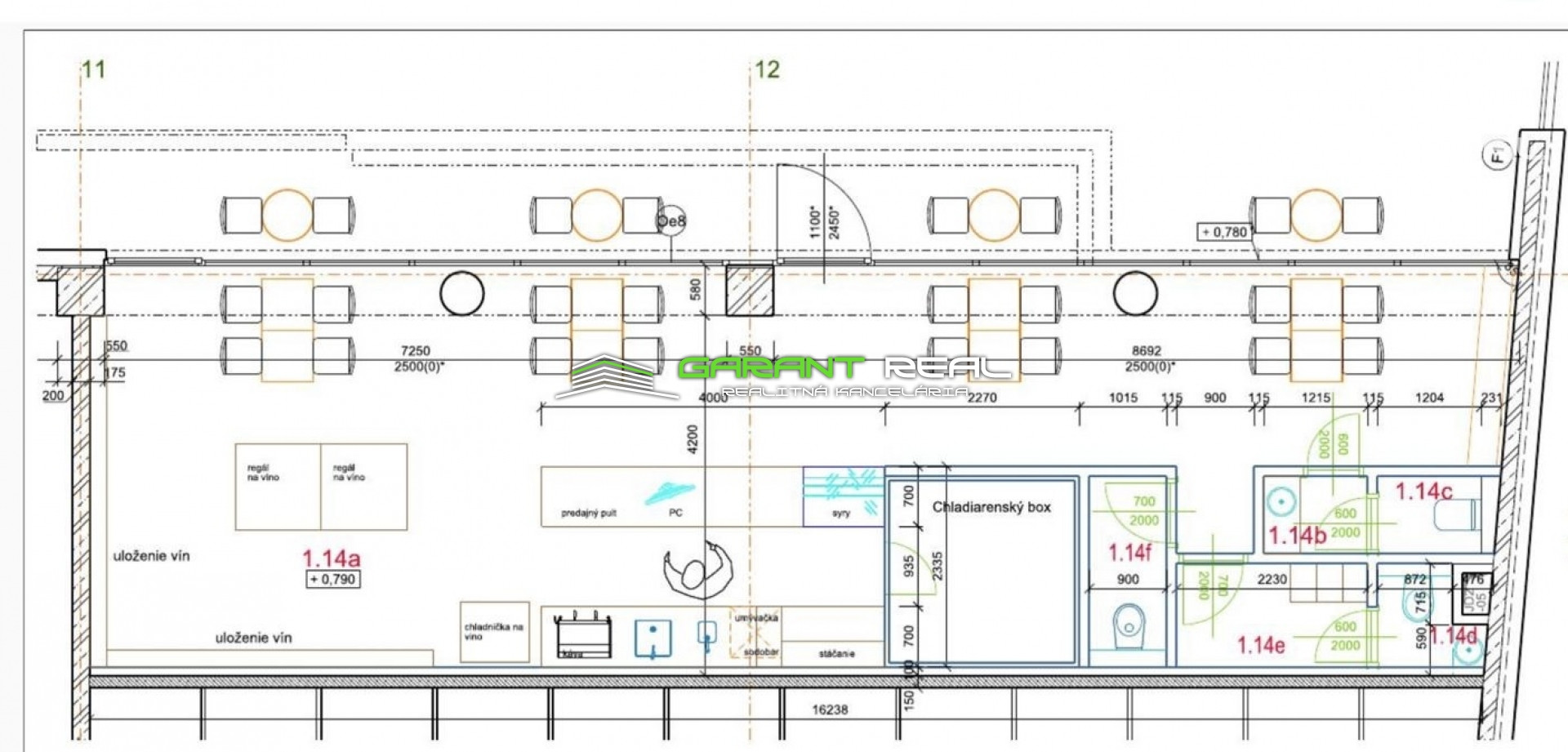
Ponúkame na predaj priestory o výmere 89 m2, v novostavbe, Košice, Staré mesto, širšie centrum, Kasárenské námestie.

VŠEOBECNÉ INFORMÁCIE:
- zabehnutá prevádzka vinotéky a kaviarne
- ponúkaný sortiment - víno, káva, čaj, doplnkový tovar
- rozloha obchodnej prevádzky 80 m2 + 20 m2 terasa
- rozloha zázemia - 2 x sklad - suchý sklad + chladiareň, 2 x sociálne zariadenie: 1 x pre personál + 1 x pre zákazníkov spolu rozloha zázemia 16 m2
- vykurovanie - vlastné kúrenie, podlahové kúrenie elektrické +  klimatizácia
- objekt je v novej budove, moderné zariadenie a vybavenie ( nie je v cene)
- podlahy - veľkoformátová gresová dlažba
- steny - celosklenená stena orientovaná do záhrady - smerom do zelene na terasu, ostatné steny - bezúdržbové umývateľné povrchy - moderné veľkoformátové obklady
- zariadenie a vybavenie je možné odkúpiť po dohode, všetky zariadenia sú vyššej kvalitatívnej triedy, profesionálny kávovar s kontrolovaným tlakom a nahrievaním šálok (značka Atlas), pult na čapovanie vína, pulty + kompletné vybavenie vinotéky
- prevádza je vybavená alarmom a kamerovým systémom

DOPLŇUJÚCE INFORMÁCIE:
- v letných mesiacoch je možnosť umiestnenia vonkajšej vlastnej terasy s cca 24 miestami na sedenie
- energetický certifikát: neuvedený

LOKALITA:
- Košice, Staré mesto s možnosťou parkovania na viacerých verejných parkoviskách s dobrou dostupnosťou, cca 150 - 200 m od prevádzky

CENA:
- cena za prevádzku je 285.000,- €  + DPH
- cena za vybavenie a zariadenie je po dohode 

VIAC AKO 15 ROKOV NA TRHU - KANCELÁRIA ROKA 2019, 2020

V prípade záujmu nás prosím kontaktujte na tel. čísle 0907 030 623,
mailom na adrese ponuky@garantreal.sk 

Navštívte nás aj osobne v kancelárii na Hlavnej ulici 70 v Prešove.

Vlastnosti

Status:
aktívne
Vlastníctvo:
osobné
Úžitková plocha:
80 m2
Stav:
novostavba
Terasa:
áno
Celková plocha:
80 m2

Informatívna úverová kalkulačka

Maklér

MVDr. Dagmar Udičová, RSc.

MVDr. Dagmar Udičová, RSc.

konateľka, obchodná manažérka

  • Slovensky
  • Česky
  • English
  • Deutsch

Radi Vám poradíme

Podobné nehnuteľnosti