Používame cookies

Súbory cookie a ďalšie technológie sledovania používame na zlepšenie vášho zážitku z prehliadania našich webových stránok, na to, aby sme vám zobrazovali prispôsobený obsah a cielené reklamy, na analýzu návštevnosti našich webových stránok a na pochopenie toho, odkiaľ naši návštevníci prichádzajú. Viac info

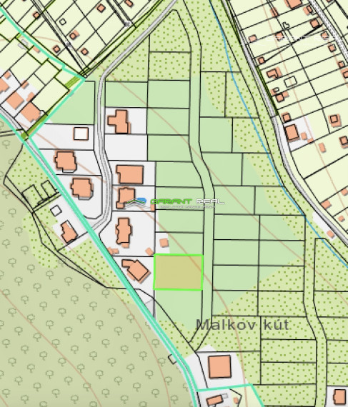
GARANT REAL - predaj stavebný pozemok 1140 m2, Prešov, Vydumanec, Líščia ulica

Interné ID: 14548
Mestská časť: Vydumanec
Obec: Prešov
Okres: Prešov
Kraj: Prešovský kraj
Druh: Pozemky
Typ: Predaj
Typ pozemku: Pozemok pre rodinné domy
141 650 €

Popis nehnuteľnosti

Ponúkame na predaj stavebný pozemok o výmere 1140 m2, Prešov, Vydumanec, Líščia ulica.

ZÁKLADNÉ ÚDAJE:
- rovinatý až mierne svahovitý pozemok nachádzajúci sa pod lesom vedľa zástavby existujúcich rodinných domov, na okraji  mestskej časti Prešov - Vydumanec
- slnečný pozemok
- v územnom pláne na výstavbu rodinných domov
- pozemok má pekný výhľad na okolitú prírodu
- na prístupovej ceste je zapísané vecné bremeno
- k pozemku vedie cesta, na ktorej je k parcele zriadené vecné bremeno na právo prechodu peši aj motorovými vozidlami

ROZMERY POZEMKU:
- dĺžka 40 m, šírka 29 m 

INŽINIERSKE SIETE:
- elektrický rozvádzač priamo na pozemku

DOPLŇUJÚCE INFORMÁCIE:
- MHD v dosahu cca 400 m

CENA:
- 141.650,- € za celý pozemok
- 123,60 €/m2

VIAC AKO 15 ROKOV NA TRHU - KANCELÁRIA ROKA 2019, 2020

V prípade záujmu nás kontaktujte na tel. čísle 0907 030 623,
mailom na adrese ponuky@garantreal.sk 

Navštívte nás aj osobne v kancelárii na Hlavnej ulici 70 v Prešove.


VIAC AKO 15 ROKOV NA TRHU - KANCELÁRIA ROKA 2019, 2020

V prípade záujmu nás kontaktujte na tel. čísle 0907 030 623,
mailom na adrese ponuky@garantreal.sk 

Navštívte nás aj osobne v kancelárii na Hlavnej ulici 70 v Prešove.

Vlastnosti

Status:
aktívne
Vlastníctvo:
osobné
Plocha pozemku:
1140 m2
Celková plocha:
1140 m2
Inžinierske siete:
áno

Maklér

MVDr. Dagmar Udičová, RSc.

MVDr. Dagmar Udičová, RSc.

konateľka, obchodná manažérka

  • Slovensky
  • Česky
  • English
  • Deutsch

Radi Vám poradíme

Podobné nehnuteľnosti